美女木8期 1号棟
現地案内会 毎週土日祝
- ※事前に必ずお問い合わせください
- ■ いつでも内覧予約できます
ご希望日時をお知らせください
電話 080-4139-9572
メール hina.owaku@f-members.co.jp
担当 大和久 陽菜(おおわく ひな)
■ 資金計画は慎重に
借入限度額がご予算ではありません。
お客さまの家族構成に合わせた資金計画のお手伝いをいたします。
お気軽にご相談ください。
住宅ローンのお悩み、解決します!頭金0円でも可能!
■お買い換えのお客さまも、当社独自の買取システムやリースバックシステムをご利用することでストレスフリーの住み替えを!
■住宅ローンに得意なスタッフが揃っています!個人的な債務があるお客さまも、まずはご相談ください!
ローンシミュレーションこの物件を購入した場合の、月々の支払い価格の一例です。借り入れを保証するものではございません。
- 返済期間
-
- 金利
-
- ボーナス時の増額(1回分)
-
- 借入金額:
-
- 頭金:
-

- 毎月の返済額:
(※元利均等方式 金利5.00%まで ※返済年数5~50年まで入力できます)
(※ボーナスは年2回で計算しています。1000万円まで入力できます)
(※物件購入時、その他諸費用が発生する場合がございます)
物件概要
【新築一戸建】 物件番号:100097753 情報更新日:2026年01月13日 次回更新予定日:2026年01月27日| 所在地 | 埼玉県戸田市美女木2丁目14-2 | ||
|---|---|---|---|
| 交通 | |||
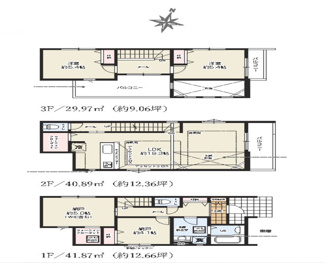
| 間取り/詳細 | 2LDK/ | 建物面積(坪数) | 112.73㎡(34.1坪) |
| 価格 | 4,499万円 | ||
| 駐車場/月額料金 | 有/0円 | ||
| 土地の敷金/保証金 | -/- | 借地料/借地期間 | -/- |
| 土地権利 | 所有権 | 土地面積(坪数) | 89.52㎡(27.07坪) |
| 傾斜地部分面積 | - | 路地状敷地 | - |
| 私道負担面積/セットバック | -/無 | 高圧線下面積 | - |
| 地目/地勢 | 宅地/平坦 | 接道状況 | 一方(北東 公道 6.0m 間口 4.6m) |
| 建ぺい率/容積率 | 70%/200% | 用途地域 | 第一種住居 |
| 都市計画 | 市街化区域 | 種別/構造 | 新築一戸建/木造 |
| 階建 | 3階建 | 築年月(築年数) | 2025年 8月 (新築) |
| 総区画数/販売区画数 | -/- | 向き | 南東 |
| 現況 | 完成済み | その他の法令上の制限 | 準防火地域 |
| 取引態様/引渡時期 | 仲介/即時 | 建築確認番号 | 第KBI-YKH25-10-0683号 |
| 物件番号 | 100097753 | 取引条件の有効期限 | 2026年01月27日 |
| 設備条件 |
|
||
| 取扱会社 |
|
||
※地図上に表示される物件の位置は付近住所に所在することを表すものであり、実際の物件所在地とは異なる場合がございます。



















